
Kupffer

.jpeg)
.jpeg)

.jpeg)
.jpeg)
.jpeg)

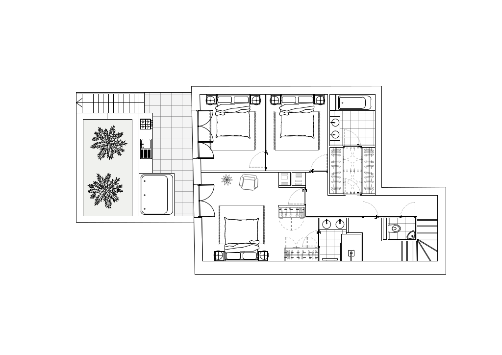
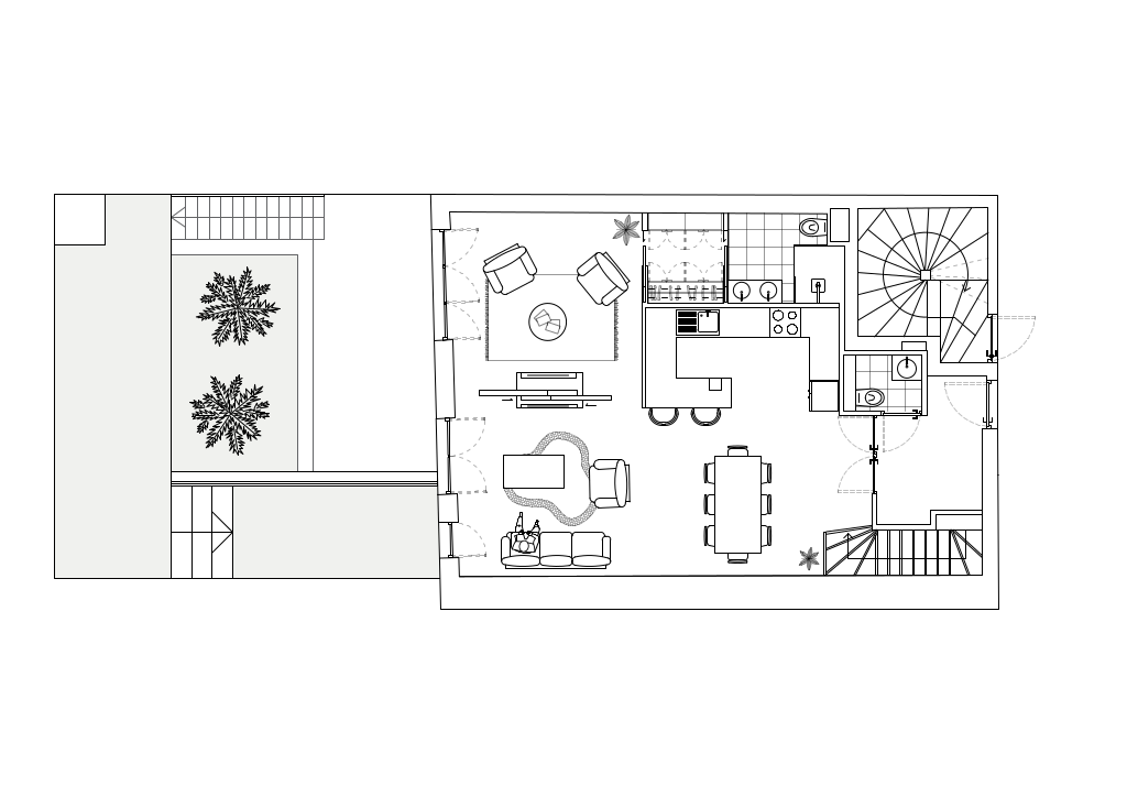
À contrebas est la réhabilitation d'un appartement en duplex où les codes habituels sont inversés. Les espaces de vie (cuisine, salle à manger et coin cinéma) s'ouvrent au rez-de-chaussée, tandis que les chambres principales s'abritent en rez-de-jardin, à contrebas, dans une atmosphère plus intime et apaisée. Le projet joue sur les contrastes de lumière, d'usage et d'altitude pour offrir un lieu fluide.


Contactez-nous pour discuter de votre projet architectural et transformer votre vision en réalité.
Nous contacter