
Fitou
.jpeg)
.jpeg)

.jpeg)
.jpeg)


.jpeg)
.jpeg)
.jpeg)

.jpeg)

.jpeg)
.jpeg)

.jpeg)


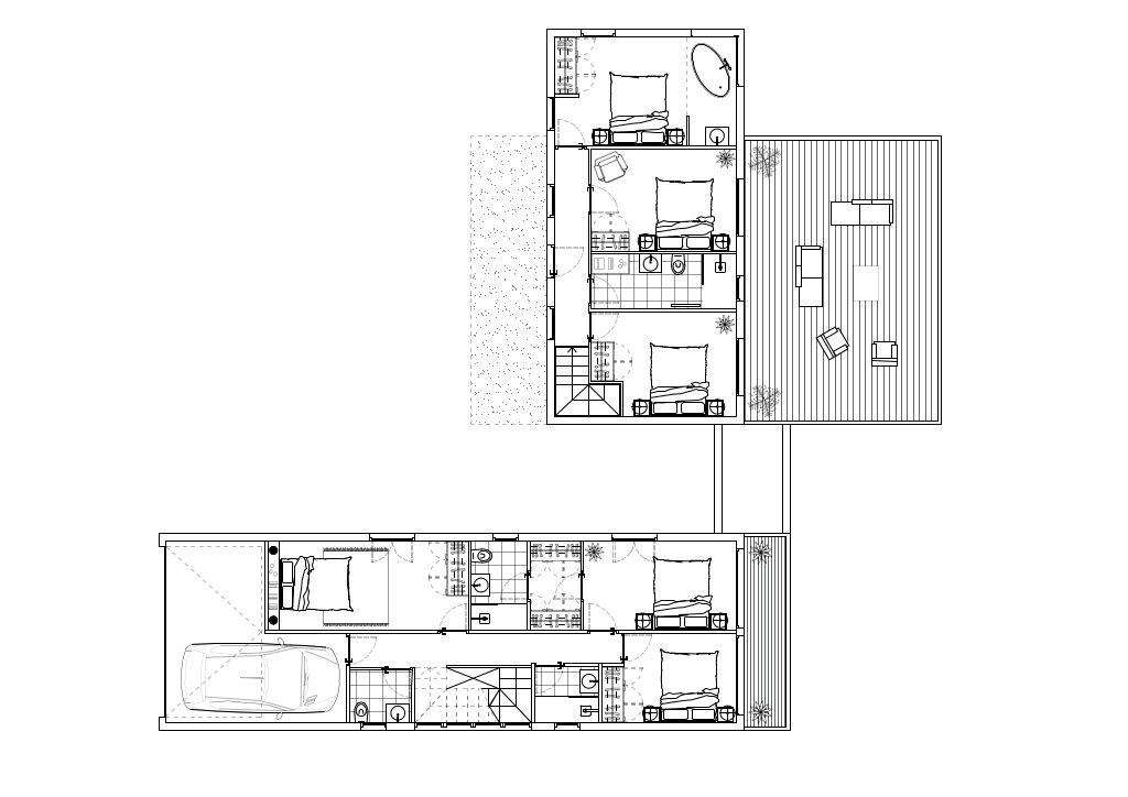
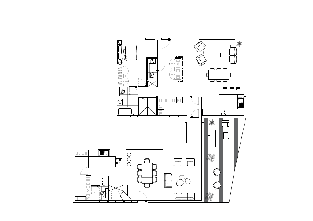
Croisement Axial s'implante au croisement de deux rues et s'ancre dans la pente naturelle du terrain. Le projet tire parti de cette topographie pour organiser la maison en deux volumes distincts, reliés par un espace central couvert. Cette articulation permet une lecture claire du bâti et favorise des cadrages variés sur le paysage environnant. L'ensemble s'intègre dans le tissu pavillonnaire tout en affirmant une identité contemporaine, par le jeu des volumes, la matérialité sobre et l'équilibre entre minéral et végétal.


Contactez-nous pour discuter de votre projet architectural et transformer votre vision en réalité.
Nous contacter