
Propulsa

.jpeg)
.jpeg)

.jpeg)
.jpeg)
.jpeg)

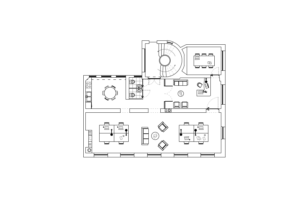
La rénovation du bureau Propulsa clarifie l'organisation spatiale en articulant visibilité et confidentialité. Le bureau de direction, situé à l'entrée, bénéficie d'une verrière qui lui apporte structure et lumière. Les espaces partagés (cuisine et salle de réunion) sont relégués à l'arrière, préservant leur intimité. Le sanitaire est agrandi, doublé et discrètement intégré grâce à une porte invisible. L'open space est repensé pour accueillir de nouveaux postes de travail et un espace de repos, accompagnant l'évolution du collectif.

Contactez-nous pour discuter de votre projet architectural et transformer votre vision en réalité.
Nous contacter