
EDOUARDVAILLANT
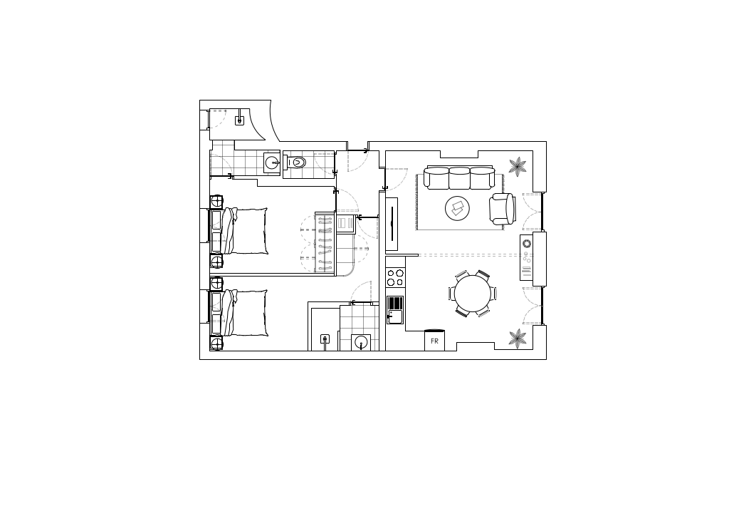
Situé à Levallois-Perret, ce projet concerne la rénovation complète d'un appartement traversant de 62 m², au sein d'un immeuble ancien. L'intervention vise à clarifier l'organisation intérieure en décloisonnant les espaces de vie pour créer une pièce principale généreuse de près de 28 m², baignée de lumière. Deux chambres confortables, des pièces d'eau repensées et un mobilier intégré sur-mesure viennent compléter cette réécriture du plan, pensée pour un usage contemporain, sans renier le charme du bâti existant.

Contactez-nous pour discuter de votre projet architectural et transformer votre vision en réalité.
Nous contacter