
Maison Dourdan
.jpeg)

.jpeg)
.jpeg)

.jpeg)

.jpeg)

.jpeg)

.jpeg)


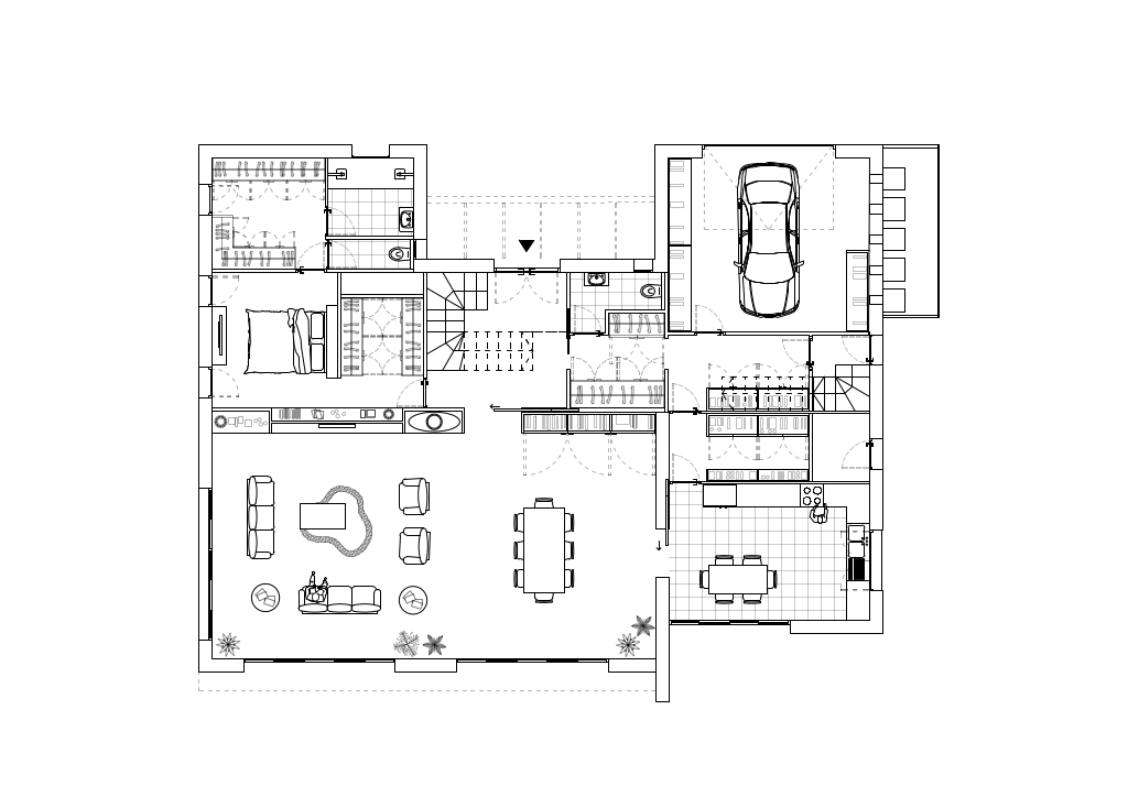
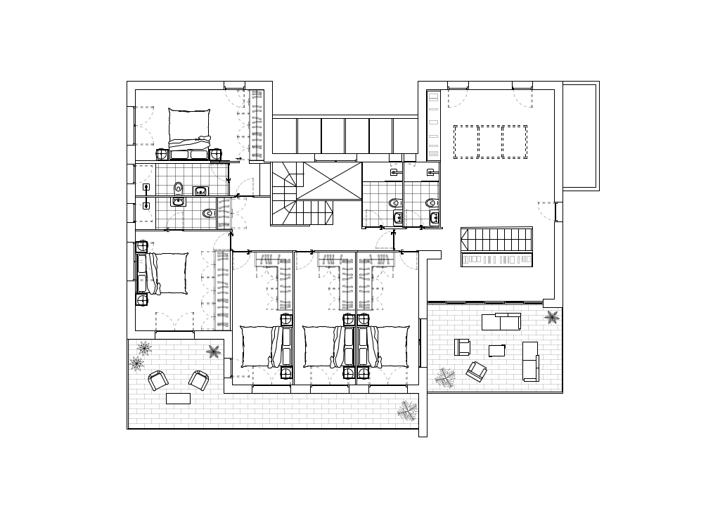
Ce projet concerne la construction d'une maison individuelle neuve située à Dourdan, dans un lotissement récemment aménagé. La conception s'inscrit dans une logique de cohabitation entre retraits et avancées, à la fois dans le plan et dans la volumétrie. La maison s'organise autour d'un vide central, véritable cœur du projet, qui articule les espaces de vie intérieurs et extérieurs. Cette composition en creux permet d'orienter les vues, de cadrer la lumière naturelle, et de créer une séquence d'usages différenciés. Il s'agit de concevoir une habitation en dialogue avec le paysage, tout en affirmant une identité architecturale sobre, mais expressive.


Contactez-nous pour discuter de votre projet architectural et transformer votre vision en réalité.
Nous contacter